


Under Construction
Under Construction
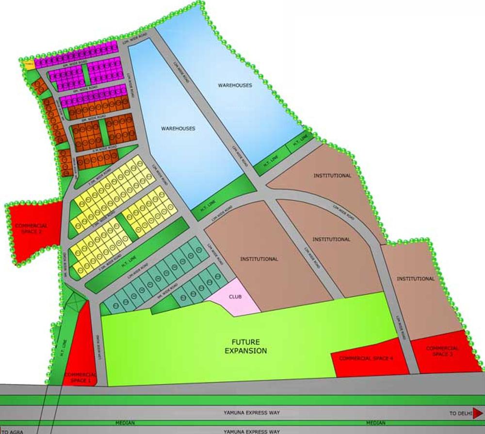
Tappal, Aligarh
By Pyramid Finmart
Configuration
BHK
Builtup area
900 - 3,600 sq ft
Possession Status
Under Construction
Status
Under Construction
Total Launched Apartments
159
Total Area
55 Acres
Availability
New
Gymnasium
Children's play area
Rain Water Harvesting
24 X 7 Security
Indoor Games
Fully Gated Secure Complex
Temple
Badminton Court
Water Round the Clock
Community Hall


Total Projects
5
Ongoing Projects
1
Batra House, Plot No. 52, Institutional Area, Sector 32, Gurugram, Haryana, 122003
Made with Love