


Under Construction
Possession : Mar 2029
Under Construction
Possession : Mar 2029
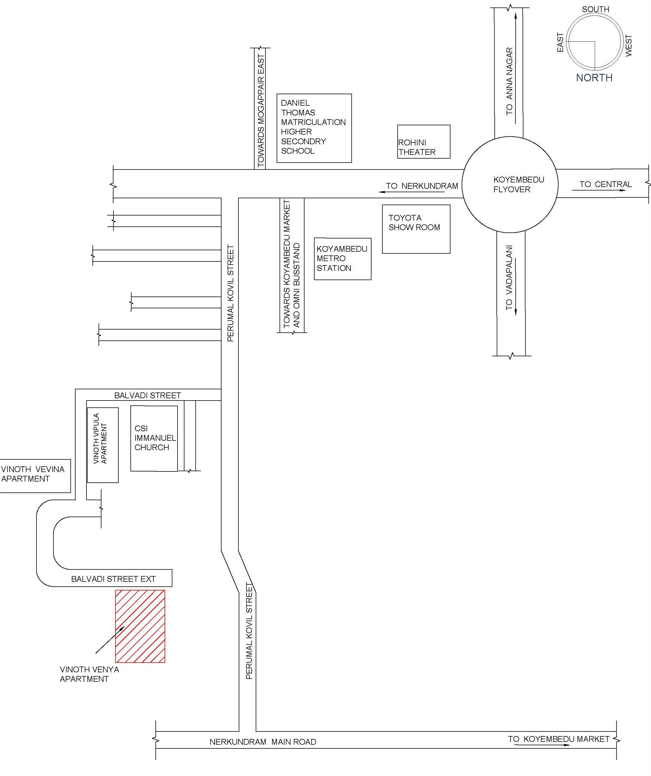
Maduravoyal, Chennai
By Vinoth
Configuration
2, 3 BHK
Builtup area
683 - 1,068 sq ft
Avg. Price
7.5K/sq.ft
Possession Status
Under Construction
Possession Start Date
March 2029
Status
Under Construction
Total Area
0.12 Acres
Availability
New
Flooring
Kitchen:
Vitrified Tiles
Living/Dining:
Vitrified Tiles
Master Bedroom:
Vitrified Tiles
Other Bedroom:
Vitrified Tiles
Toilets:
Anti Skid Ceramic Tiles
Balcony:
Anti skid ceramic tiles
Walls
Interior:
Emulsion Paint
Exterior:
Weather proof paint
Kitchen:
Glazed Tiles Dado up to 2 Feet Height Above Platform
Toilets:
Glazed Tiles Dado up to 7 Feet Height Above Platform
Video Door Security
Children's play area
Closed Car Parking
24X7 Water Supply
24x7 CCTV Surveillance
Lift(s)
Solid Waste Management And Disposal

HP Petrol Pump
0.34 Km
HP Petrol Pump
0.34 Km
Nerkundram Bus Stop
0.36 Km
Nerkundram Bus Stop
0.36 Km
Nerkundram
0.36 Km

Maduravoyal, Chennai
Vinoth
Price on Request
2,3 BHK
683 - 1,068 sq.ft
2,3 BHK
835 - 1,265 sq.ft
2,3,4 BHK
1,025 - 1,846 sq.ft
Mar ‘29

Years of experience
26
Total Projects
27
Ongoing Projects
5
Vinoth is a leading player in the Chennai realty market and possesses a staggering 14 years of experience in the industry. All property by Vinoth is representative of the company’s commitment towards quality and upholding best practices in the industry with a vi
Batra House, Plot No. 52, Institutional Area, Sector 32, Gurugram, Haryana, 122003
Made with Love